1、物料特性
单水氢氧化锂为白色结晶粉末,能溶于水,微溶于醇,能从空气中吸收二氧化碳而变质。呈强碱性,不会燃烧,但有强腐蚀性。通常以一水物的形式出现。当温度高于100℃时失去结晶水,在1000℃左右氢氧化锂生成氧化锂和水蒸汽。单水氢氧化锂是最重要的锂化合物之一,主要用于生产锂基润滑脂,也可用于生产其他锂化合物,是碱性电池电解质的添加剂。单水氢氧化锂的主要生产原料有锂云母、锂辉石、盐湖卤水等。
单水氢氧化锂为白色晶体,流动性较差,由前道离心工序来的湿物料,含水量一般为3%左右,要求干燥后产品含水量0.5%以下。
2、专用干燥工艺
单水氢氧化锂干燥具有以下特点和要求:加热温度较低(一般采用80-95℃热水),温度高了易脱去结晶水;物料干燥过程中遇有二氧化碳易发生反应而变性,因此干燥设备需密闭操作;物料松散,但流动性不好且易结疤;要求能源消耗低,物料受热均匀,操作环境好,一次性达到指标要求;电池级单水氢氧化锂对干燥过程新增磁性物质要求较严(一般<30ppb);尾气除尘除味需做好。
石家庄达弘机械设备有限公司根据物料分析及多年工程经验,成功将节能环保型盘式连续干燥机作为单水氢氧化锂干燥设备,并已为多家此物料生产厂家提供了干燥系统解决方案。
针对锂盐和电池材料行业对干燥后产品磁性物质的要求(一般要求在30ppb以内),我公司率先提出将盘式连续干燥机的接触物料部分(如布料盘、干燥盘、进出料口、耙叶等)由不锈钢改为钛材和非金属,并设计、改造了多家电池材料生产企业的干燥设备。若对干燥后产品磁性物质要求不严格,设备材质可选择304不锈钢或316L不锈钢。
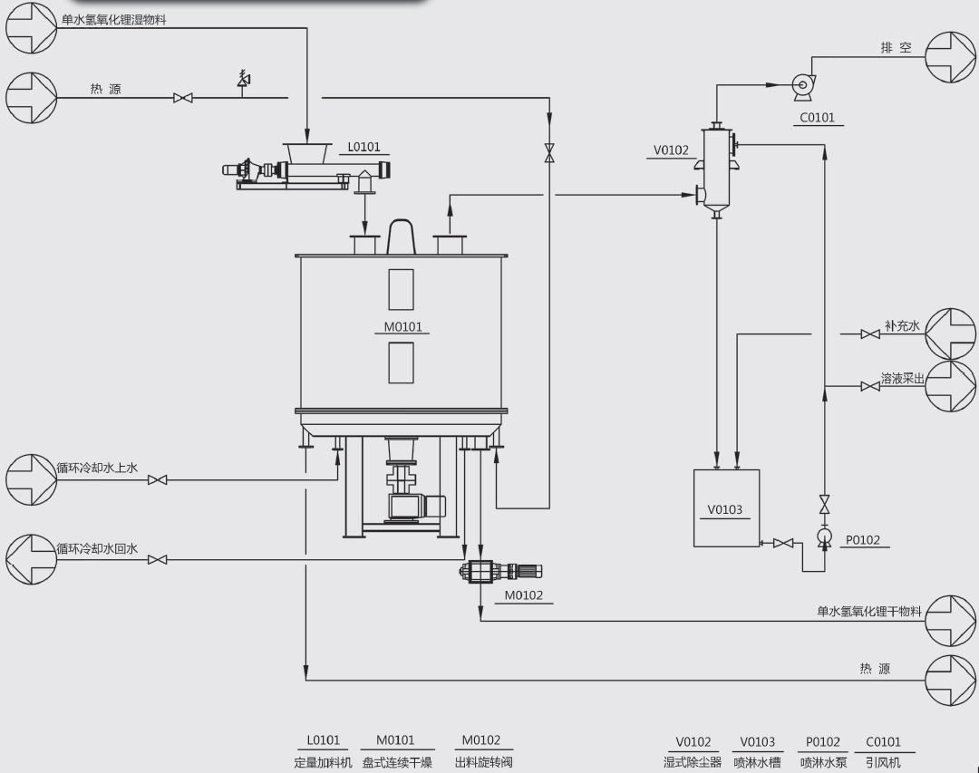
工艺简介:由前道工序输送过来的单水氢氧化锂湿料,由定量加料器连续定量地加入节能环保型盘式连续干燥机内进行干燥作业,物料在流动过程中完成传热传质过程,达到干燥的目的。干燥物料在干燥机内经冷却达到包装温度后(一般在50℃左右)由底部的排料口经过出料旋转阀排出进入下一道工序,从物料中逸出的尾气由设在干燥机顶部的排湿口经专用除尘器除尘后排出。
3、工艺特点
(1)针对单水氢氧化锂遇二氧化碳易反应变性的特点,首先,采用密闭型盘式连续干燥机进行干燥,避免了单水氢氧化锂在干燥过程中与二氧化碳反应变性;其次,在盘式连续干燥机出料口配出料旋转阀,避免由于风机的抽吸作用引入大量冷风;再次,采用特殊结构使氢氧化锂不与空气中的二氧化碳反应,具体措施在最终设备上体现。
(2)连续运行,热效率高。由于盘式连续干燥机为传导传热方式进行干燥,干燥过程中干燥机内不通入空气,其尾气携带量很少,故其热效率可达85%以上;
(3)物料损失少,操作环境好。在盘式连续干燥机干燥单水氢氧化锂中,由于物料上进下出,物料分布也是上湿下干,且干燥尾气流速极低(约0.1m/s),因此物料粉尘很难浮到设备顶部,很少会被尾气夹带排走,不仅不损失物料,而且不会污染环境,达到了环保的要求;整个干燥系统密闭操作,尾气采用特殊设计的除尘器,可回收99%以上的粉尘;
(4)设备可调性强,物料干燥均匀可调。可通过调整设备转速、调整料层厚度、热源流量、热源温度、耙臂数量、耙叶形式、尺寸和角度、物料加入量和干燥机中干燥盘使用数量,能方便的调整物料干燥的效果;
(5)设备运行稳定、寿命长、操作简单;
(6)物料流向单一,无返混现象,干燥均匀、质量稳定、不需再混合;
(7)每层干燥盘皆可单独通入热介质或冷介质,对物料进行加热或冷却,也可在一台设备内实现上部干燥下部冷却,物料温度控制准确、容易;
(8)对于湿物料中的小颗粒,采用特制的碾碎装置加在干燥机内部的适当位置,从而碾碎小颗粒为粉状,可以强化传热和干燥过程,保证干燥物料的均匀性;
(9)安装方便,占地面积小。干燥机整体出厂,整体运输,只需吊装就位,安装定位非常容易;由于干燥盘层式布置、立式安装,既使干燥面积很大,占地面积也很小。
(10)针对电池材料行业对干燥后产品磁性物质的要求(一般要求在30ppb以内),我公司率先提出将盘式连续干燥机的直接接触物料部分由不锈钢改为钛材,并设计、改造了多家电池材料生产企业的干燥设备,达到了最终客户的要求。
(11)针对单水氢氧化锂干燥过程尾气中有粉尘和气味的问题,采用除尘和除味较好的湿式除尘器,除掉尾气中的粉尘和气味。
(12)采用专利技术在一台设备内将干燥区和冷却区分开,隔绝湿气从干燥区域到冷却区域的扩散,防止湿气冷凝后增加干燥后物料的湿度。同时,设置开口使物料可以通过,保证正常工作。
(13)针对氢氧化锂流动性不好,易在干燥盘面上结疤的问题,采用特制耙叶耙杆结构,使物料不会在干燥盘上结疤。
工艺流程图


